Марка | ПГУ ГСК-40 |
Требования к криогенной арматуре | Герметичность затвора – класс А, ГОСТ Р 54808 |
Температура эксплуатации, °C | от - 40 до + 50 |
Габаритные размеры, ДхШхВ, мм | 12192х2438х2591 |
| Атмосферный испаритель | |
|---|---|
Рабочее давление, Мпа | 2,5 |
Расчетное давление, Мпа | 4 |
Рабочая температура на входе, °С | -126…-161 |
Температура на выходе испарителя, °С | На 20 °С ниже температуры окружающей среды |
Объемная производительность, нм3/ч, | 1250 ± 10% |
Макс. производительность в течение 24 ч., нм3/ч | 2500 ± 10% |
Площадь теплообмена, м2 | 527 |
Расчетная температура стенки аппарата, °C | -196 … +50 |
Материальное исполнение трубопроводов | Нержавеющая сталь SA-240M (304), 12Х18Н10Т |
Продолжительность работы в году | Непрерывно, переключение испарителей каждые 8 ч. |
Российская сертификация | ТРТС 032, 010, 012 |
| Подогреватель газа | |
Тип взрывозащиты | Exd |
Класс защиты | IP67 |
Тип нагревателя | TPAE |
Номинальная мощность нагревателя | 35 |
Напряжение питания | 380 |
Частота тока | 50 |
Рабочая температура | -17 |
Форма нагревательных элементов | U-образные |
Материал нагревательных элементов | AISI316L |
Удельная мощность нагревательных элементов | 3,4 |
Материал корпуса | хладостойкая сталь |
Давление рабочее | 0,3…2,5 |
| Одаризатор | |
Погрешность одорирования, не более | 2% |
Погрешность учета расхода одоранта, не более | 2,50% |
Рабочая температура | 5-35 °С |
Норма ввода одоранта | 16 г/тыс.м3 |
Предназначена для регазификации СПГ и редуцирования КПГ с целью обеспечения автономной газификации промышленных потребителей и населенных пунктов, в том числе для временного газоснабжения потребителей при проведении плановых и аварийных работ на магистральном газопроводе, а также для снабжения топливом генераторных установок буровых станков.
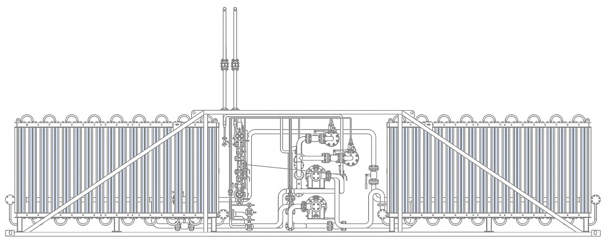
Система состоит из атмосферных испарителей, узла редуцирования КПГ, подогревателя природного газа, регулятора давления и узла коммерческого учета и АСУТП, смонтированных в стальном контейнере, который может быть установлен на полуприцеп.
Технологический блок предусматривает подключение двух Крио ПАГЗ или ПАГЗ с выдачей СПГ/КПГ на регазификацию/ редуцирование с одного из них и возможностью переключения с одного на другой без прекращения процесса регазификации/редуцирования.